桃園|園首之道|新成屋
桃園青埔|皇普園首之道
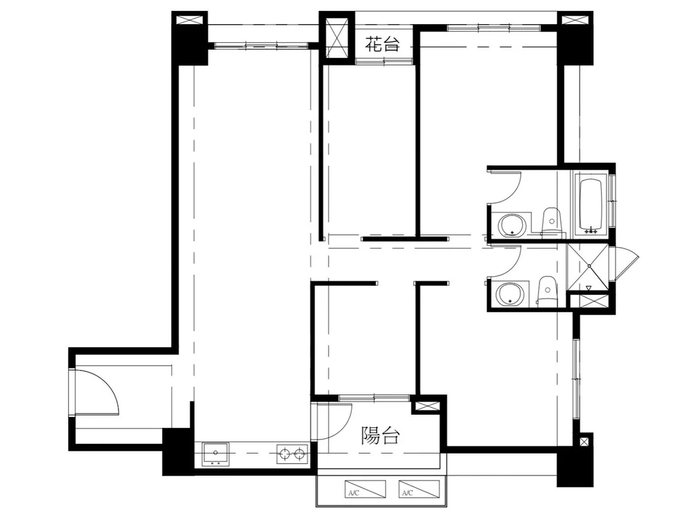
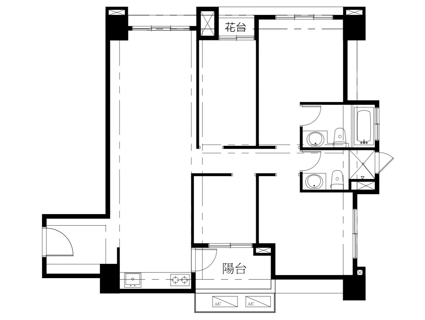
四房改三房,重構生活與空間效率
格局優化|回應真實生活,而非房間數量
本案位於桃園青埔「皇普園首之道」,原始為四房格局, 居住成員僅兩位。
在這樣的條件下,空間的價值並不在於房間數量, 而在於是否真正被使用。
我們將格局重新配置為三房, 將多餘空間轉化為收納、居家辦公與更舒適的公領域比例, 讓空間回歸生活本質。
廚房機能重整|讓使用變得理所當然
原始配置中,廚房並未預留完整冰箱位置, 這在實際使用上會造成動線與收納的斷裂。
我們透過調整客房尺度, 整合餐櫃與冰箱配置, 讓餐廚動線更加直覺且順暢。
走道設計|讓空間被使用,而不是被經過
在多數住宅中,走道僅是過渡空間。
本案透過更衣室與收納配置整合, 將走道轉化為收納與展示的一部分, 提升坪效,也讓空間層次更加豐富。
公領域串聯|從玄關到客廳的連續語彙
電視牆以不規則立面延伸, 串聯玄關、餐廳與客廳, 建立整體空間的連續性。
這不只是造型設計, 而是讓空間在不同場域之間, 保有一致的節奏與秩序。
設計本質|空間不是越多,而是越準確
四房改三房, 並不是減少, 而是重新定義。
對兩位居住者而言, 更完整的收納、 更順暢的動線、 更貼近生活的空間, 才是真正的價值。

